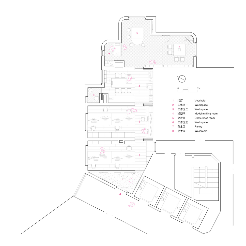
Construction and Design:
“The three spaces parallel to the entrance retain ceiling heights consistent with conventional residential areas. Steps are added at the junctions of adjacent spaces, and the architectural technique of gradually elevating the floor creates a directional "body memory." Two large-scale floor-to-ceiling glass windows are installed, transforming the space into a more open and versatile public area.